Accueil > Maçonnerie > Rénovation > Restauration intérieur d'un hôtel en peinture et cloison Bouches du Rhône

Restauration intérieur d'un hôtel en peinture et cloison Bouches du Rhône

Sud Est Construction réalise la restauration complète ou partielle pour des hôtels sur le secteur des Bouches du Rhône.

Pour ce faire, nous procédons à une expertise complète des lieux, avec l'architecte nous définissons les plans actuels et le plan final après avec les changements à apporter.

Nous intervenant après l'acception du devis et les plans conformes.

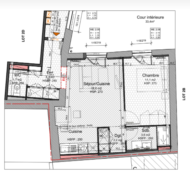
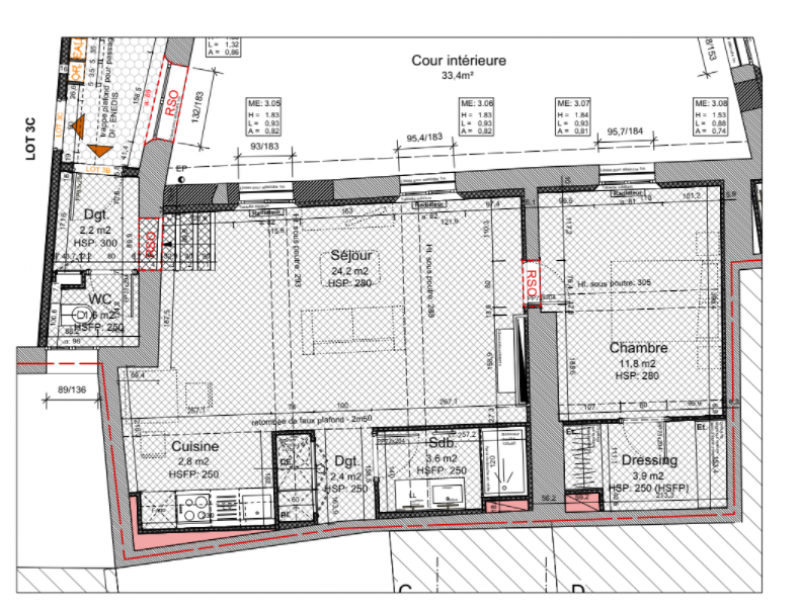
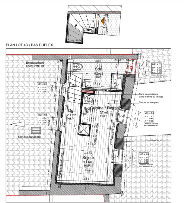
Société de maçonnerie tout corps d'état à Marseille, nous effectuons des travaux de restauration, en photo nous avons quelques plans , pour une restauration d'un hôtel sur les Bouches du Rhône, pour refaire cette fois les cloisons et les peintures.

Vous aussi confiez nous votre projet de réhabilitation, de restauration ou rénovation sur la région.
Contactez-nous
Les champs indiqués par un astérisque (*) sont obligatoires
Réactivité
Professionnalisme
Conseils
> Contact & devis
/
  • SUD EST CONSTRUCTION
    • 14 rue du Laos
      13015 Marseille
  • 04 69 00 22 20
  • contact@sud-est-construction.fr